Вся автотехника с манипуляторами и КМУ поставляется с полным комплектом документов для постановки на учет в органах ГИБДД и РосТехНадзора (сертификат)
ВНИМАНИЕ цвет! ДОП.ОПЦИЯ На сайте представлены автомобили разных расцветок. Все требования и пожелания по цвету и окраске продукции согласовывайте на этапе разработки технического задания и заключения договора.
| Параметры масс | |
| Снаряженная масса, кг, не более | 15 255 |
| Полная масса, кг, не более | 15 405 |
| Масса перевозимого груза, кг, не более | 4 600 |
| Распределение нагрузки от автомобиля полной массы | |
| На передний мост, кг | 5 480 |
| На заднюю тележку, кг | 9 925 |
| Внутренние размеры кузова-фургона | |
| Длина, мм | 4 900 |
| Ширина, мм | 2 460 |
| Габаритные размеры | |
| Длина, мм | 7 696 |
| Ширина, мм, не более | 2 480 |
| Высота, мм | 3 700 |
| Двигатель | |
| Тип | 740.622-280 (Eвро-4), дизельный с турбонаддувом |
| Мощность, л.с. | 280 |
| Коробка передач | |
| Модель | ZF-9 |
| Тип | механическая, 9-ступенчатая |
| Главная передача | |
| Передаточное отношение | 5,94 |
| Колеса и шины | |
| Размер шин | 425/85R21 |
Транспортно-бытовая машина Камаз 5350-42 предназначена для отдыха и кратковременного проживания бригад на месте проведения работ, а также транспортировки мелкогабаритного груза.
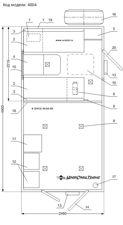
Планировка и внутренняя отделка кузова-фургона
Кузов-фургон представляет собой каркасную сварную конструкцию, наружная обшивка – стальной лист, в качестве утеплителя используется пенополистерол. В зависимости от назначения и климатических условий эксплуатации толщина стеновых панелей может быть от 30 до 80 мм.
Внутренняя отделка жилого отсека выполнена промышленным пластиком белого цвета, пол покрыт рифленой резиной. Окна с двойным остеклением, оснащены форточкой и удобным механизмом запирания, окантованы двойным уплотнителем.
Внутренняя отделка грузового отсека выполнена промышленным пластиком, пол покрыт рифленой резиной.
В грузовом отсеке расположены шкафы, предназначенные для транспортировки и временного хранения газосварочных баллонов.
В жилом отсеке смонтированы автономный воздушный отопитель и отопитель от системы охлаждения ДВС, выполняющие функцию поддержания необходимой температуры.

Еще одной особенностью фургона является съемная лестница, по которой осуществляется вход персонала и перемещение грузов внутрь фургона. Для удобства и экономии пространства, лестница в транспортном положении убирается в нишу под полом фургона. Конструкция лестницы предусматривает широкие ступеньки, по которым легче производить спуск и подъем внутрь фургона.
Организация бортовой электросети
Электросистема бытовой машины питается от базового транспортного средства.
Защита потребителей от перегрузок и короткого замыкания обеспечивается соответствующими автоматическими выключателями и модулем защитного отключения установленым в шкафу управления.
Напряжение 24В постоянного тока подается из электрической схемы базового автомобиля. Автофургон комплектуются необходимым количеством светильников: обычно используются пыле- и влагозащищенные люминесцентные светильники. Возможна установка специальных светильников, исходя из требований для различных классов пожаровзрывобезопасности помещений.
Технические характеристики автотехники, приведенные на данной странице, носят справочный характер, т.к. параметры и иные эксплуатационные показатели зависят от желаемой покупателем комплектации транспортного средства.
При этом завод-изготовитель оставляет за собой право изменять технические характеристики автотехники, а также состав и перечень применяемых для ее изготовления комплектующих, если указанные мероприятия направлены на улучшение параметров конструкции, работоспособности автотехники и не изменяют ее назначение.