Данная модель КМУ может быть изготовлена в различных вариантах: верхнее или нижнее управление, дополнительные опоры и доп.оборудование. [заказ обязательно согласовывайте с нашим менеджером]
Также для данного КМУ вы можете приобрести: стропы, цепи, чалки [открыть лист заказа]
Вся автотехника с манипуляторами и КМУ поставляется с полным комплектом документов для постановки на учет в органах ГИБДД и РосТехНадзора (сертификат)
ВНИМАНИЕ цвет! ДОП.ОПЦИЯ На сайте представлены автомобили разных расцветок. Все требования и пожелания по цвету и окраске продукции согласовывайте на этапе разработки технического задания и заключения договора.
| Параметры масс | |
| Снаряженная масса, кг | 14 870 |
| Полная масса, кг | 16 520 |
| Масса перевозимого груза, кг | 1 500 |
| Двигатель | |
| Модель | 740.662-300 (ЕВРО-4) |
| Тип | дизельный с турбонаддувом, с промежуточным охлаждением наддувочного воздуха |
| Номинальная мощность, л.с. | 300 |
| Коробка передач | |
| Модель | ZF9 |
| Тип | механическая, 9-ступенчатая |
| Шины | |
| Тип | 425/85 R21 |
| Топливный бак | |
| Емкость топливного бака, л | 350 + 210 |
| Габаритные размеры грузовой платформы | |
| Длина, мм | 1 860 |
| Ширина, мм | 2 400 |
| Габаритные размеры бортовой платформы | |
| Длина, мм | 2 570 |
| Ширина, мм | 2 400 |
| Габаритные размеры автофургона | |
| Длина, мм | 9 720 |
| Ширина, мм | 2 500 |
| Высота, мм | 3 770 |
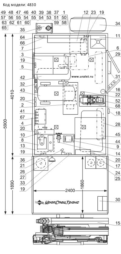
Передвижная авторемонтная мастерская (ПАРМ) на шасси Камаз 43118-46 может быть применена для выполнения широкого перечня работ по ремонту и восстановлению техники в условиях отсутствия стационарных ремонтных баз, а также для проведения планового технического обслуживания различной техники. На заднем свесе автофургона смонтирован манипулятор Palfinger PK-15500А для проведения грузоподъемных работ весом до 6,2 тонн.
Отделка стен и потолка автофургона высококачественным автомобильным пластиком, а также износостойкое полимерное покрытие пола обеспечивают эстетичный внешний вид и долгий срок эксплуатации.
Применение высококачественных материалов и комплектующих при изготовлении, отделке и комплектации мастерской позволяют обеспечить высокий уровень проведения ремонтных работ. Просчитанная конструкция, высокое качество и износостойкость материалов, применяемых в отделке кузова-фургона обеспечивают надежность и долгий срок эксплуатации автофургона.
Мастерская оснащена аварийно-вентиляционным люком обеспечивающим большую проветриваемость салона, в случае необходимости может использоваться как аварийно-эвакуационный люк.
В левой панели фургона встроено окно-форточка, обеспечивающие естественное освещение, вентиляцию и необходимый обзор. Окно изготовлены с применением двойного герметичного стеклопакета из травмобезопасного стекла с уплотнителем толщиной 60 мм. В отсеке мастерской расположены два окна на скосах фургона для большей освещенности отсека. Окна на скосах окантованы двойным контуром высококачественного уплотнителя. В ночное время освещение кабины кузова-фургона электрическое от четырех плафонов.
Мастерская оборудована автономным воздушным отопителем, который выполняет функцию поддержания необходимой температуры.
Еще одной особенностью фургона является двухсекционная раскладная лестница, по которой осуществляется вход персонала внутрь ремонтного отсека. Для удобства и экономии пространства лестница в транспортном положении убирается в нишу под полом кузова-фургона. Конструкция лестницы предусматривает широкие ступеньки, по которым легче производить спуск и подъем. Ступеньки изготовлены из стального рифленого листа, что исключает случайное соскальзывание ноги.
ПАРМ оснащен всем необходимым оборудованием и инвентарем для проведения ремонтных и сварочных работ.
Фургон оборудован розетками для подключения потребителей 220 и 380V. Для работы в темное время суток все рабочие места фургона оборудованы плафонами освещения.
Питание оборудования передвижной ремонтной мастерской осуществляется от генератора мощностью 40 кВт и внешнего источника питания, к которому предусмотрен специальный разъем. Защита потребителей и цепей 380В и 220В от перегрузок и короткого замыкания обеспечивается соответствующими автоматическими выключателями и модулем защитного отключения установленым в шкафу управления.
Кузов-фургон ПАРМ оборудован специальным люком для быстрого доступа и удобства эксплуатации сварочного выпрямителя.
Планировка и расположение оборудования произведены с учетом максимально полезного использования пространства масерской и удобства работы персонала. Все оборудование и инструмент надежно закреплены на штатных местах.
Грузовой отсек ПАРМ выполнен в виде бортовой площадки открытого типа с двумя откидными бортами. На правом откидном борту закреплена откидная ступенька, обеспечивающая более легкий подъем на грузовую платформу. Ступеньки имеют рифленую поверхность, что исключает соскальзывание ноги. Для предотвращения перемещения груза во время транспортировки предусмотрены специальные петли для увязки груза. Также на площадке расположены контейнеры для транспортировки и временного хранения газосварочных баллонов.
На заднем свесе ПАРМ смонтирован манипулятор Palfinger PK-15500А для проведения грузоподъемных работ весом до 6,2 тонн.
| Грузовой момент, тм | 14,1 |
| Максимальная грузоподъемность, кг | 6 100 |
| Грузоподъемность на максимальном вылете, кг | 1 690 |
| Максимальный вылет стрелы, м | 8,0 |

Технические характеристики автотехники, приведенные на данной странице, носят справочный характер, т.к. параметры и иные эксплуатационные показатели зависят от желаемой покупателем комплектации транспортного средства.
При этом завод-изготовитель оставляет за собой право изменять технические характеристики автотехники, а также состав и перечень применяемых для ее изготовления комплектующих, если указанные мероприятия направлены на улучшение параметров конструкции, работоспособности автотехники и не изменяют ее назначение.