ВНИМАНИЕ цвет! ДОП.ОПЦИЯ На сайте представлены автомобили разных расцветок. Все требования и пожелания по цвету и окраске продукции согласовывайте на этапе разработки технического задания и заключения договора.
| Параметры масс | |
| Снаряженная масса, кг | 12 590 |
| Полная масса, кг | 19 900 |
| Расперделение нагрузки от автомобиля полной массы | |
| На передний мост, кг | 5 030 |
| На заднюю тележку, кг | 14 600 |
| Двигатель | |
| Модель | ЯМЗ-65674 (ЕВРО-5) |
| Тип | дизельный |
| Мощность, л. с. | 230 |
| Система питания | |
| Вместимость топливного бака, л | 350 + 210 |
| Колеса и шины | |
| Размер шин Информация по шинам |
425/85 R21 |
| Габаритные размеры | |
| Длина, мм | 9 550 |
| Ширина, мм | 2 550 |
| Высота, мм | 3 800 |
Агрегат ремонтно-сварочный – АРС производства "УралСпецТранс" – предназначен для выполнения широкого перечня работ по ремонту,восстановлению и возведению металлоконструкций на удаленных площадках.
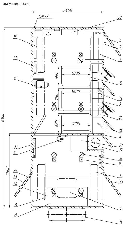
Внутренняя отделка и планирока кузова-фургона
Кузов-фургон представляет собой каркасную сварную конструкцию, наружная обшивка – стальной лист, в качестве утеплителя используется пенополистерол. В зависимости от назначения и климатических условий эксплуатации толщина стеновых панелей может быть от 30 до 80 мм. Автомобильный фургон разделен на 2 отсека: отсек для размещения рабочей бригады и отсек мастерскую. Внутренняя отделка отсека для бригады выполнена промышленным пластиком. Такой вариант отделки более практичен для ремонтных работ. Для увеличения тепло- и шумоизоляции проемы дверей и люков окантовываются двойным уплотнителем.
Отсек для бригады оснащен рундуками, столом и вешалками для одежды. Более комфортные условия пребывания бригады в условиях холодного климата обеспечивает автономный воздушный отопитель.

Отсек-мастерская оснащен дизельным сварочным агрегатом Denyo DCW-480 ESW Evo и всем необходимым инструментом и оборудованием для проведения ремонтных, востановительных и монтажных работ, планировка и комбинация оборудования выполнена в свободном варианте и предусматривает максимально эффективное использование свободного пространства.
Ниши для транспортировки и хранения различного оборудования
Особенностью автофургона АРС Урал 4320 явлеются специальные отсеки для хранения и транспортировки различного оборудования. Ниши позволяют увеличить рабочее пространство внутри кузова-фургона, обеспечить легкий доступ к оборудованию, а также внутри фургона на них можно разместиь оборудование. Снаружи АРС имеет ниши для размещения газосварочных баллонов.

Ниши со сварочными кабелями обеспечивают удобство пользования сварочным оборудованием и проведения сварочных работ. Также ремонтно-сварочный агрегат УСТ имеет люки для удобства доступа к распооженному внутри кузова-фургона оборудованию.
Источником электропитания для потребителей являеться дизельный сварочный агрегат Denyo DCW-480 ESW Evo. Для подключения внешних потребителей пердусмотрены розетки с напряжением 220V. Проводка выполняется медным кабелем расчетного сечения открыто в ПВХ коробах, которая сводится в отдельный электрощит и заземляется.

Урал АРС 4320 комплектуются необходимым количеством светильников: обычно используются пыле и влагозащищенные люминесцентные светильники, со степенью защиты IP 54, IP 65, а также плафоны салона с выключателем на корпусе. Возможна установка специальных светильников, исходя из требований для различных классов пожаровзрывобезопасности помещений.
|
Технические характеристики автотехники, приведенные на данной странице, носят справочный характер, т.к. параметры и иные эксплуатационные показатели зависят от желаемой покупателем комплектации транспортного средства.
При этом завод-изготовитель оставляет за собой право изменять технические характеристики автотехники, а также состав и перечень применяемых для ее изготовления комплектующих, если указанные мероприятия направлены на улучшение параметров конструкции, работоспособности автотехники и не изменяют ее назначение.